В статье рассмотрим ключевые аспекты выбора конструкции кузнечного горна и процесс его самостоятельного изготовления. Кузнечный горн — важный инструмент для кузнецов, позволяющий нагревать металл до нужной температуры для обработки. Правильный выбор конструкции и знание этапов создания помогут сэкономить средства и обеспечить высокое качество работы. Материал будет полезен как начинающим кузнецам, так и опытным мастерам, стремящимся улучшить навыки и оптимизировать рабочий процесс.
Устройство горна
Горн состоит из нескольких ключевых компонентов:
- прочного основания, изготовленного из негорючих материалов,
- огнеупорного стола,
- топливной камеры с решёткой для угля,
- воздушной камеры и системы дренажа,
- воздуховода для поступления воздуха,
- вентиля для регулировки воздушного потока,
- шатровой камеры,
- проёма для подачи длинных изделий,
- зонта горна,
- газовоздушной камеры,
- ванны для закалки изделий,
- дымохода для удаления продуктов сгорания,
- съёмного горнила.
Эксперты в области кузнечного дела подчеркивают, что выбор конструкции и самостоятельное изготовление кузнечного горна — это важный этап для каждого кузнеца. Они отмечают, что существует множество вариантов горнов, от традиционных до современных, и выбор зависит от целей и уровня мастерства. Например, простые конструкции из кирпича или металла подходят для начинающих, в то время как более сложные модели с принудительной подачей воздуха обеспечивают высокую температуру и эффективность работы.
Специалисты рекомендуют тщательно изучить материалы и технологии, чтобы создать горн, который будет соответствовать индивидуальным потребностям. Также важно учитывать безопасность: горн должен быть устойчивым и хорошо вентилируемым. В конечном итоге, правильно выбранная конструкция и качественное изготовление горна могут значительно улучшить процесс кузнечного производства и повысить качество изделий.
https://youtube.com/watch?v=sLSNheQDqP4
Принцип работы
Принцип функционирования горна основан на химической реакции, в ходе которой углерод сгорает в присутствии кислорода, образуя углекислый газ и выделяя тепло. Этот процесс также способствует восстановлению металлов, что является ключевым моментом для получения однородных и прочных деталей.
Для поддержания оптимального уровня горения и температуры в топливной камере устанавливаются воздуховоды и воздушные камеры, которые обеспечивают подачу чистого кислорода. Это позволяет достигать температур свыше +1000°С, что невозможно при обычном сжигании твёрдого топлива, такого как уголь или древесина.
Как выглядит самодельный газовый кузнечный горн
При этом в процессе надува объем воздуха подбирается таким образом, чтобы кислорода всегда немного не хватало для полноценного протекания реакции окисления. Иными словами, необходимо установить такой режим работы, который предотвратит сгорание металла.
Также важно ограничить время нахождения выплавляемой детали в горне, поскольку в атмосфере углекислого газа металл может начать с ним реагировать, образуя высокопрочный, но хрупкий сплав. Чтобы избежать этих негативных последствий, в камеру следует дополнительно вводить кислород в таком количестве, чтобы он успевал полностью реагировать с углекислым газом.
| Критерий выбора | Тип горна | Особенности конструкции и изготовления |
|---|---|---|
| Источник топлива | Угольный горн | Простота: Легко изготовить из подручных материалов (старая бочка, кирпичи). Топливо: Древесный уголь, кокс. Конструкция: Чаша для угля, фурма для подачи воздуха. Минусы: Много дыма, сажи, сложно регулировать температуру. |
| Газовый горн | Чистота: Меньше дыма и сажи. Контроль: Легче регулировать температуру. Топливо: Пропан, бутан. Конструкция: Корпус из огнеупорного материала (керамическое волокно, шамотный кирпич), горелка, регулятор давления газа. Минусы: Требует соблюдения техники безопасности при работе с газом, дороже в изготовлении. | |
| Индукционный горн | Высокая эффективность: Быстрый нагрев, точный контроль температуры. Чистота: Отсутствие открытого пламени, дыма. Конструкция: Индукционная катушка, высокочастотный генератор. Минусы: Очень дорогой, сложный в изготовлении, требует специальных знаний. | |
| Размер и мобильность | Стационарный горн | Размер: Большой, для крупных заготовок. Мобильность: Неперемещаемый. Конструкция: Массивная, часто с кирпичной кладкой. Применение: Для профессиональных кузниц, постоянной работы. |
| Переносной горн | Размер: Компактный, для небольших заготовок. Мобильность: Легко перемещать. Конструкция: Легкая, часто из листового металла. Применение: Для выездных работ, хобби. | |
| Материалы для изготовления | Металл (сталь) | Доступность: Легко найти. Простота обработки: Относительно легко резать, сваривать. Недостатки: Требует футеровки огнеупорными материалами для защиты от высоких температур. |
| Кирпич (шамотный) | Огнеупорность: Отлично держит температуру. Долговечность: Прочный, износостойкий. Недостатки: Тяжелый, требует навыков кладки. | |
| Керамическое волокно | Легкость: Очень легкий материал. Огнеупорность: Отличные теплоизоляционные свойства. Простота монтажа: Легко резать, формировать. Недостатки: Хрупкий, требует защиты от механических повреждений. | |
| Система подачи воздуха | Ручной мех | Простота: Не требует электричества. Контроль: Полностью ручное управление. Недостатки: Физически утомительно, сложно поддерживать постоянный поток воздуха. |
| Электрический вентилятор | Удобство: Автоматическая подача воздуха. Контроль: Легко регулировать поток воздуха. Недостатки: Требует электричества, может быть шумным. | |
| Пылесос (в режиме выдува) | Доступность: Можно использовать старый пылесос. Простота: Легко подключить. Недостатки: Не всегда обеспечивает достаточный поток воздуха, может перегреваться. |
Интересные факты
Вот несколько интересных фактов о выборе конструкции и самостоятельном изготовлении кузнечного горна:
-
Разнообразие конструкций: Существует множество типов кузнечных горнов, включая традиционные угольные, газовые и электрические. Каждый из них имеет свои преимущества и недостатки. Например, угольные горны обеспечивают высокую температуру и могут использоваться для работы с различными металлами, но требуют больше усилий для поддержания огня. Газовые горны проще в использовании и обеспечивают более чистое сгорание, что делает их популярными среди современных кузнецов.
-
Материалы для изготовления: При самостоятельном изготовлении кузнечного горна можно использовать различные материалы, такие как кирпич, металл или даже огнеупорные плитки. Некоторые кузнецы предпочитают использовать старые газовые баллоны или металлические контейнеры, что позволяет не только сэкономить, но и создать уникальный горн с индивидуальным дизайном.
-
Эффективность и безопасность: Правильный выбор конструкции горна влияет не только на эффективность работы, но и на безопасность. Например, горны с хорошей вентиляцией и системой удаления дыма снижают риск отравления угарным газом и обеспечивают более комфортные условия для кузнеца. Поэтому при проектировании и изготовлении горна важно учитывать не только его функциональность, но и безопасность эксплуатации.
https://youtube.com/watch?v=lLTSc83vxhI
Назначение и варианты использования
Кузнечный горн можно создать своими руками, учитывая его основное назначение, что позволяет адаптировать конструкцию под конкретные задачи. Важно разобраться в функциях каждой из его составляющих:
- Топливник, оснащённый колосниковой решёткой, воздушной камерой, вентилем и патрубком, предназначен для сжигания топлива и нагрева металлических заготовок. В зависимости от температурных требований, он может иметь как открытую, так и закрытую конструкцию, а также может быть без системы воздушного наддува.
- Воздушный дренаж служит для контроля подачи кислорода и предотвращения хрупкости металла, создавая оптимальные условия для нагрева и плавления заготовок.
- Шатёр или зонт с дымоходом необходимы для удаления угарного газа и других вредных продуктов сгорания, которые могут негативно сказаться на здоровье человека.
- Закалочная ванна используется для быстрого охлаждения металла, что позволяет ему приобрести оптимальные пластические и прочностные характеристики.
- Жаростойкий колпак или горнило предназначены для увеличения зоны равномерного нагрева, что способствует эффективному плавлению металла в тигле (чаще всего цветных драгоценных металлов).
- Газовоздушная камера служит для осушения воздуха, его очистки от примесей и введения легирующих элементов, что необходимо для получения качественных изделий с заданными свойствами в соответствии с конкретной справочной диаграммой состояний и фаз.
- Стол является основным элементом конструкции, на котором размещаются все компоненты горна, а также используется для частичного охлаждения заготовок.
Горн может быть использован для следующих задач:
- Нагрева металла перед ковкой или другими видами обработки.
- Плавления в специальных формах.
- Термообработки для улучшения определённых свойств материалов.
Классификация горнов
Прежде чем приступить к созданию кузнечного горна, важно изучить его классификацию, чтобы выбрать наиболее подходящий вариант конструкции. Классификация горнов проводится по следующим критериям:
- по типу используемого топлива,
- по конструкции,
- по размеру загрузки.
Виды горнов по типу применяемого топлива
По типу используемого топлива кузнечные горны можно классифицировать на следующие категории:
- газовые,
- твердотопливные,
- работающие на жидком топливе.
Кузнечный горн на твердом топливе
Газовые горны отличаются простотой конструкции, а также низкими затратами на ремонт и обслуживание. Они легкие, что позволяет создавать переносные или компактные модели.
Твердотопливные горны способны достигать высоких температур, при этом они имеют относительно невысокую стоимость строительных материалов для их постройки и не требуют сложного ухода. Для их растопки можно использовать следующие виды топлива:
- карбон или кокс, который отличается высокой ценой и эффективностью (расход может быть в 5 раз меньше, чем у угля), не содержит посторонних примесей и воспламеняется при температуре выше +450°С,
- каменный уголь, наиболее распространенное и эффективное топливо, при сгорании выделяет коксовый газ, поэтому перед началом работы необходимо дождаться его полного выветривания; подходит для ковки различных декоративных элементов и деталей среднего качества,
- древесный уголь, имеет низкую температуру возгорания по сравнению с другими видами топлива, но быстро сгорает и требует большего расхода, поэтому его лучше использовать для растопки.
В качестве жидкого топлива можно применять солярку, мазут или отработанное масло. Важно предварительно очищать его от примесей, так как они могут вызвать нестабильное пламя и выбросы вредных веществ в атмосферу.
Это также усложняет обслуживание оборудования из-за частых засоров.
Классификация по конструктивным особенностям
Кузнечные горны, изготовленные своими руками, можно классифицировать по различным конструктивным характеристикам:
- по типу установки: мобильные или стационарные,
- по типу топочной камеры: с закрытой или открытой конструкцией,
- по расположению системы наддува: с боковым или центральным соплом.
Виды горнов по размерам пода
По размеру пода горны классифицируются на малые, средние и крупные. Эти категории определяются эффективностью работы установки и зависят от интенсивности расхода топлива, а также от режимов эксплуатации топливной камеры. Оптимальная скорость расхода топлива для достижения максимальной эффективности составляет от 1 до 1,5 м/с.
Производительность горна пропорциональна величине напряжённости и площади пода. Минимальная напряжённость варьируется в пределах от 100 до 150 кг/м2·ч. Показатели, выходящие за эти рамки, считаются экономически нецелесообразными.
Как сделать кузнечный горн?
Прежде чем приступить к созданию кузнечного горна самостоятельно, важно собрать все нужные материалы и инструменты. Это поможет сократить время, затрачиваемое на процесс.
Инструкция по созданию твердотопливного передвижного горна
Перед началом работ следует подготовить следующие инструменты:
- сварочный аппарат,
- дрель,
- напильник,
- набор гаечных ключей,
- шпатель,
- рулетка,
- уровень,
- струбцина,
- маркер,
- болгарка.
Для создания кузнечного горна потребуется сварочный аппарат.
После того как чертеж кузнечного горна будет готов, необходимо приобрести материалы для его сборки:
- листовую сталь толщиной 2-3 мм (рекомендуется марка 09Г2С),
- 4 поворотных колеса,
- профильные трубы квадратного сечения с толщиной стенок не менее 2 мм,
- огнеупорный цемент,
- воздушная улитка,
- крепежные элементы: болты и гайки,
- труба из нержавеющей стали по диаметру выходного отверстия улитки,
- переходник.
Процесс изготовления мобильного угольного кузнечного горна открытого типа включает следующие шаги:
- Берем стальной лист и размечаем его маркером по размерам рабочего стола.
- С помощью болгарки вырезаем столешницу, а кромки обрабатываем напильником.
- На вырезанном листе размечаем прямоугольное отверстие для жерла горна и вырезаем его болгаркой.
- Берем второй стальной лист и размечаем детали для трапецеидального жерла горна.
- Вырезаем элементы жерла и свариваем их в единую конструкцию.
- Привариваем жерло к рабочей поверхности стола в месте прорезанного отверстия.
- Переворачиваем конструкцию жерлом вниз, размечаем места для стенок, которые будут удерживать угли.
- Вырезаем борта из стали для рабочей поверхности стола.
- Привариваем борта так, чтобы швы были прочными и без зазоров, точно центрируя элементы конструкции.
- Для нижней части жерла вырезаем стенки для воздуховодов и привариваем их.
- Изготавливаем съемное дно для жерла, предназначенное для удаления золы.
- Прикрепляем к нему педаль с помощью рычагов.
- На стенке для подвода трубы с воздухом делаем отверстие по диаметру трубы.
- Вырезаем элементы из стальных профильных труб и свариваем каркас для крепления рабочей поверхности.
- Привариваем планку для крепления улитки к нижней части каркаса и фиксируем её на болты.
- Подготавливаем трубу для воздуховода.
- Прикрепляем воздуховод к улитке и жерлу, при необходимости добавляем дополнительное крепление для усиления конструкции.
- К нижней части каркаса прикрепляем поворотные колеса на болты.
- Промазываем стыковочные швы огнеупорной шпаклевкой.
- На рабочей поверхности горна формируем огнеупорный слой из огнеупорного цементного раствора.
Кузнечный горн на угле необходимо протестировать, прогревая его до рабочей температуры, но только после полного застывания цементного слоя.
Пошаговая инструкция изготовления газового горна
Для создания газового кузнечного горна необходимо заранее собрать следующие материалы:
- огнеупорный кирпич,
- листы жаростойкой стали толщиной не менее 5 мм,
- тонкие нержавеющие листы (до 2 мм) для внешней отделки,
- стальные профильные трубы,
- дымоходные трубы из нержавеющей стали,
- огнеупорная шпатлёвка,
- стандартные горелки, используемые в газовых отопительных котлах,
- вентилятор для подачи воздуха.
Также вам понадобятся следующие инструменты:
- сварочный аппарат,
- болгарка,
- дрель,
- напильник,
- рулетка,
- маркер.
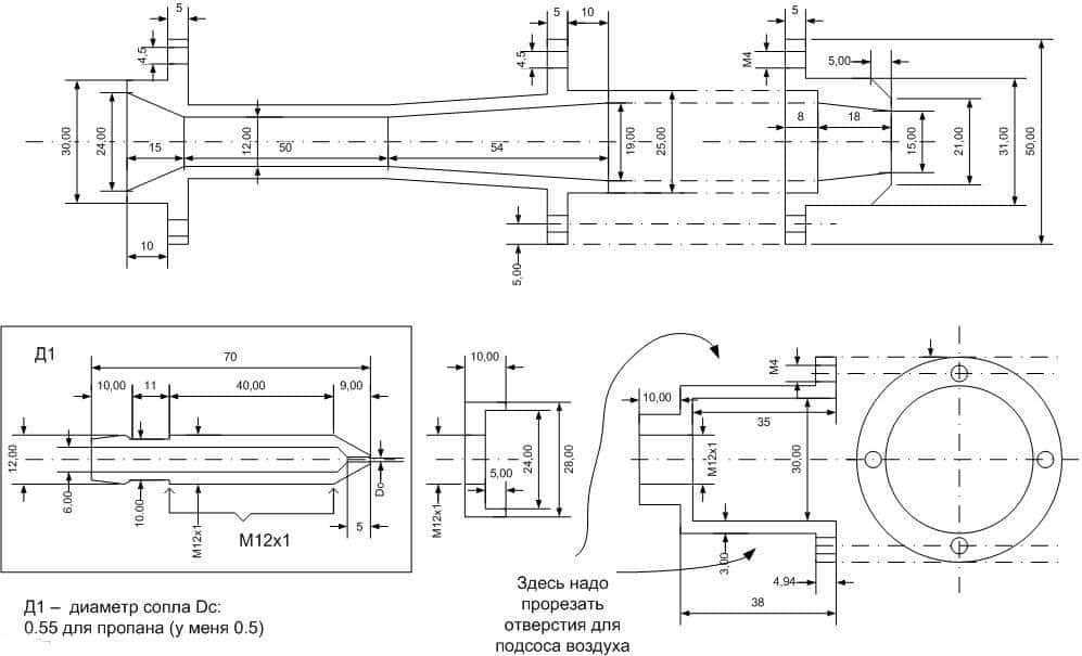
Чертеж газового кузнечного горна
Процесс изготовления газового кузнечного горна включает в себя следующие шаги:
- Используем огнеупорные кирпичи для формирования корпуса горна. При необходимости обрабатываем торцы болгаркой с насадкой для бетона, чтобы обеспечить плотное соединение.
- В передней части конструкции создаём небольшую ступеньку из огнеупорного кирпича для поддержания оптимальной температуры.
- В задней части делаем прямоугольное отверстие для вентиляции.
- Из толстого стального листа изготавливаем основание, соответствующее размерам кирпичного корпуса горна.
- Привариваем профильные трубы к торцевым частям листа так, чтобы кирпичи внутри них оставались неподвижными.
- В боковой части топочной вырезаем отверстие для подключения газовой трубы с установленной горелкой.
- Из толстолистовой стали вырезаем верхнюю часть для горна.
- Привариваем уголки к корпусу внизу и вверху.
- Высверливаем по одному отверстию в уголках и соединяем нижнюю и верхнюю части горна с помощью шпилек.
- Из профильных труб создаём стойку для горна, а затем свариваем все детали согласно чертежу.
- Устанавливаем горн на стойку.
- Присоединяем к камере трубу для отвода продуктов сгорания.
- Внутри камеры размещаем газовую горелку и фиксируем её на месте ввода.
- Снаружи обшиваем корпус тонколистовой сталью, предварительно вырезав части нужного размера. Все швы свариваем сплошным швом.
Самостоятельное изготовление горна не только экономично и относительно просто, но и позволяет создать установку, соответствующую вашим конкретным потребностям.
https://youtube.com/watch?v=nEJfgBXZVNM
Материалы и инструменты для изготовления горна
При выборе материалов и инструментов для изготовления кузнечного горна необходимо учитывать несколько ключевых факторов, таких как доступность, стоимость, прочность и термостойкость. Основные компоненты, из которых будет состоять горн, включают корпус, топку, воздуховод и решетку.
Корпус горна может быть выполнен из различных материалов, но наиболее распространенными являются сталь и чугун. Сталь обладает высокой прочностью и устойчивостью к коррозии, что делает её идеальным выбором для долговечного использования. Чугун, в свою очередь, хорошо удерживает тепло, но может быть более хрупким и подвержен растрескиванию при резких перепадах температуры.
Топка горна должна быть изготовлена из жаропрочных материалов, таких как огнеупорный кирпич или специальный жаростойкий бетон. Эти материалы способны выдерживать высокие температуры, необходимые для кузнечного процесса. Огнеупорный кирпич также обеспечивает хорошую теплоизоляцию, что позволяет экономить топливо и поддерживать стабильную температуру в горне.
Воздуховод играет важную роль в обеспечении необходимого притока воздуха для поддержания горения. Для его изготовления можно использовать металлические трубы, которые обеспечивают хорошую прочность и долговечность. Важно, чтобы воздуховод имел достаточный диаметр, чтобы обеспечить эффективную подачу воздуха в топку.
Решетка служит для поддержания топлива и позволяет золу и другие остатки свободно падать в нижнюю часть горна. Решетку можно изготовить из металлической сетки или прутьев, которые должны быть устойчивыми к высоким температурам и не поддаваться коррозии.
Что касается инструментов, то для самостоятельного изготовления кузнечного горна вам понадобятся:
- Сварочный аппарат для соединения металлических частей;
- Болгарка или ножовка по металлу для резки материалов;
- Дрель с набором сверл для создания отверстий;
- Молоток и зубило для обработки и подгонки деталей;
- Измерительные инструменты (линейка, уровень, угольник) для точности сборки.
При выборе материалов и инструментов важно учитывать не только их стоимость, но и доступность в вашем регионе. Рекомендуется заранее составить список необходимых компонентов и инструментов, чтобы избежать лишних затрат и задержек в процессе изготовления горна.
Вопрос-ответ
Из чего состоит кузнечный горн?
Открытая конструкция кузнечного горна. Открытые камеры состоят из колосника, поддона, защитной плиты, системы вентиляции. На решетку насыпают топливо, когда оно загорается, сверху кладут поковку. Такие горны ставят на улице или в помещении с мощной вентиляционной системой.
Какая температура в кузнечном горне?
Кузнечный горн применяется для быстрого нагрева заготовок из металла. Максимальная рабочая температура составляет 1100 °C. В данной печи в качестве топлива для сгорания применяют сжиженный газ в баллонах.
Как устроен горн?
Горны состоят, поэтому, из двух главных частей: собственно горна, т. е. углубленного гнезда, в котором помещаются горючий материал и нагреваемый металл, и из воздухоподводящего прибора (фурмы с соплом).
Из чего сделан горн?
Конструкция горна. Промышленный горн представляет собой металлический кожух, выложенный изнутри огнеупорным кирпичом. В боковых стенках имеются фурмы (для кузнечных мехов, а позднее для вентилятора) для подачи воздуха в зону горения. Необходимыми инструментами кузнеца при работе с горном были щипцы и молот.
Советы
СОВЕТ №1
Перед началом изготовления кузнечного горна тщательно изучите различные конструкции, доступные на рынке. Сравните их по материалам, размерам и функциональности, чтобы выбрать наиболее подходящий вариант для ваших нужд и условий работы.
СОВЕТ №2
Обратите внимание на источник топлива для горна. В зависимости от выбранной конструкции, вам может понадобиться уголь, древесина или газ. Убедитесь, что у вас есть доступ к необходимым материалам и что они соответствуют требованиям безопасности.
СОВЕТ №3
При самостоятельном изготовлении горна используйте качественные и прочные материалы. Это обеспечит долговечность конструкции и безопасность в процессе работы. Не экономьте на важных компонентах, таких как жаропрочные кирпичи или стальные элементы.
СОВЕТ №4
Не забывайте о вентиляции и безопасности. Убедитесь, что ваше рабочее место хорошо проветривается, чтобы избежать накопления угарного газа. Также используйте защитные средства, такие как перчатки и очки, чтобы минимизировать риск травм.



